ISW臥式管道泵 臥式離心泵廠家 臥式管道離心泵全新報價 臥式管道增壓泵型號齊全
ISWD臥式管道離心泵介紹
ISWD臥式管道離心泵(臥式低轉速單級循環泵)ISWD臥式低轉速管道泵,其特點是電機轉速低,運行起來能更加平穩,聲音較輕。是我公司科技人員采用ISW型離心泵的改進而成,ISWD為低轉速管道泵,因此在選型時留意同樣的型號,參數較高轉速離心泵而言就不同。在一般管道泵的基礎上進行巧妙組合設計而成。同時根據使用溫度、介質等不同在ISG管道離心泵基礎上派出適用冷水、熱水、高溫、腐蝕性化工泵、油泵。單級循環泵產品具有高效節能、噪音低、性能可靠等優點。本公司生產ISWD型臥式管道離心泵質量保證,廠家直銷。
ISWD臥式管道離心泵適用范圍
1、ISW臥式管道離心泵供輸送清水及物理化學性質類似于清水的其它液體之用,適用于工業和城市給排水、高層建筑增壓送水、園林噴灌、消防增壓、遠距離輸送、暖通制冷循環、浴室等冷暖水循環增壓及設備配套,使用溫度t≤80℃。
2、ISWR臥式熱水管道泵廣泛適用于:冶金、化工、紡織、造紙以及賓館飯店等鍋爐熱水增壓循環輸送及城市采暖系統,iswr型使用溫度t≤120℃。
3、ISWH臥式不銹鋼管道離心泵,供輸送不含固體顆粒,具有腐蝕性、粘度類似于水的液體,適用于石油、化工、冶金、電力、造紙、食品制藥和合成纖維等部門,使用溫度為-20℃~+120℃。
4、ISWB防爆臥式管道離心泵供輸送汽油、煤油、柴油等油類產品或易燃、易爆液體,被輸送介質溫度為-20~ +120℃。
ISWD臥式管道離心泵型號意義

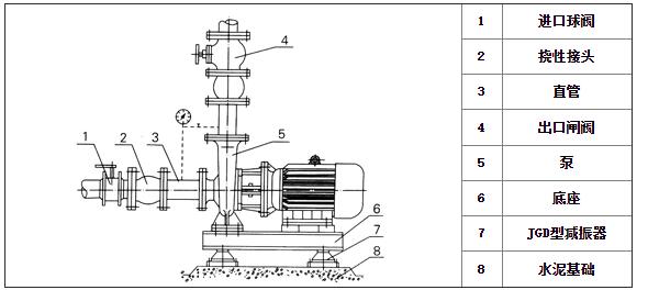
ISWD低轉速臥式管道泵安裝說明
1、安裝前應檢查水泵和電機有無損傷,泵流道內有無影響水泵運行的硬質物體(如石塊、鐵粒等),以免水泵運行時損壞葉輪和泵體。
2、安裝時管路重量不應加在水泵上,應有各自的支承體,以免泵變形影響運行性能和壽命。
3、泵與電機是整體結構,安裝時無需找正,十分方便。
4、當輸送熱水液體時,為了不使泵承受管路的熱變形,泵座的底腳螺栓可以不固定,當管路系統在熱脹冷縮時,使泵能與管路一起移動。
5、泵體兩端法蘭規格均按1.6 M Pa標準確定,所以配備管路時應規格相同。
6、為了不使雜質進入泵內而堵塞流道影響性能,應在泵進口前面安裝比吸入管截面積大3-4倍的過濾器。
7、排出管路如裝逆止閥應裝在閘閥的外面。
8、泵用于有吸程場合,應裝有底閥,并且進出口管路不應有過多彎道,同時不得有漏水、漏氣現象。
9、為了維修方便和使用安全,在泵的進、出口管路上各安裝一只調節閥及在泵出口附近安裝一只壓力表,以保證泵在額定范圍內運行,確保泵的正常運行和使用壽命。
1 0、安裝完畢后盤動泵軸,葉輪應無摩擦和卡死現象。
ISWD低轉速臥式管道離心泵附件尺寸
隔振器安裝尺寸 SD型隔振墊0.5基本尺寸
ISWD低轉速臥式管道離心泵安裝方式
1.剛性安裝
11KW以上時,隔振器與基礎可鉆膨脹螺栓相聯。說明:7.5KW以下水泵可配隔振墊直接安裝在基礎上。
2.柔性安裝
ISW、ISWR、ISWH、ISWB型臥式管道離心泵性能參數
(低轉速1450、970r/min):
型號
|
流量
(m3/h)
|
揚程
(m)
|
電機功率
(kw)
|
轉速
(r/min)
|
40-125(I) |
6.3
|
5
|
0.55
|
1450
|
40-160(I) |
6.3
|
8
|
0.55
|
1450
|
40-160(I)A |
5.5
|
6
|
0.55
|
1450
|
40-200(I) |
6.3
|
12.5
|
0.75
|
1450
|
40-200(I)A |
5.8
|
11
|
0.55
|
1450
|
40-250(I) |
6.3
|
20
|
1.5
|
1450
|
40-250(I)A |
5.8
|
17
|
1.1
|
1450
|
50-125 |
6.3
|
5
|
0.55
|
1450
|
50-160 |
6.3
|
8
|
0.55
|
1450
|
50-160A |
5.5
|
6
|
0.55
|
1450
|
50-200 |
6.3
|
12.5
|
0.75
|
1450
|
50-200A |
5.8
|
11
|
0.55
|
1450
|
50-250 |
6.3
|
20
|
1.5
|
1450
|
50-250A |
5.8
|
17
|
1.1
|
1450
|
50-125(I) |
12.5
|
5
|
0.55
|
1450
|
50-160(I) |
12.5
|
8
|
0.75
|
1450
|
50-160(I)A |
11
|
6
|
0.55
|
1450
|
50-200(I) |
12.5
|
12.5
|
1.1
|
1450
|
50-200(I)A |
11.2
|
10
|
0.75
|
1450
|
50-250(I) |
12.5
|
20
|
2.2
|
1450
|
50-250(I)A |
11.7
|
17.5
|
1.5
|
1450
|
50-250(I)B |
10
|
13
|
1.1
|
1450
|
50-315(I) |
12.5
|
32
|
4
|
1450
|
50-315(I)A |
11.7
|
28
|
3
|
1450
|
50-315(I)B |
10
|
21
|
3
|
1450
|
65-125 |
12.5
|
5
|
0.55
|
1450
|
65-160 |
12.5
|
8
|
0.75
|
1450
|
65-160A |
11
|
6
|
0.55
|
1450
|
65-200 |
12.5
|
12.5
|
1.1
|
1450
|
65-200A |
11.2
|
10
|
0.75
|
1450
|
65-250 |
12.5
|
20
|
2.2
|
1450
|
65-250A |
11.7
|
17.5
|
1.5
|
1450
|
65-250B |
10
|
13
|
1.1
|
1450
|
65-315 |
12.5
|
32
|
4
|
1450
|
65-315A |
11.7
|
28
|
3
|
1450
|
65-315B |
10
|
21
|
3
|
1450
|
65-125(I) |
25
|
5
|
0.75
|
1450
|
65-160(I) |
25
|
8
|
1.5
|
1450
|
65-160(I)A |
22
|
6
|
1.1
|
1450
|
65-200(I) |
25
|
12.5
|
2.2
|
1450
|
65-200(I)A |
23.3
|
11
|
1.5
|
1450
|
65-250(I) |
25
|
20
|
3
|
1450
|
65-250(I)A |
22.2
|
15.8
|
2.2
|
1450
|
65-250(I)B |
20
|
12.8
|
1.54
|
1450
|
65-315(I) |
25
|
32
|
5.5
|
1450
|
65-315(I)A |
22.5
|
26
|
4
|
1450
|
65-315(I)B |
20
|
21
|
3
|
1450
|
80-125 |
25
|
5
|
0.75
|
1450
|
80-160 |
25
|
8
|
1.5
|
1450
|
80-160A |
22
|
6
|
1.1
|
1450
|
80-200 |
25
|
12.5
|
2.2
|
1450
|
80-200A |
23.3
|
11
|
1.5
|
1450
|
80-250 |
25
|
20
|
3
|
1450
|
80-250A
|
22.2
|
15.8
|
2.2
|
1450
|
80-250B
|
20
|
12.8
|
1.5
|
1450
|
80-315
|
25
|
32
|
5.5
|
1450
|
80-315A
|
22.5
|
26
|
4
|
1450
|
80-315B
|
20
|
21
|
3
|
1450
|
80-125(I)
|
50
|
5
|
1.5
|
1450
|
80-160(I)
|
50
|
8
|
2.2
|
1450
|
80-160(I)A
|
44.7
|
6
|
1.5
|
1450
|
80-160(I)B |
43.2
|
5.8
|
1.5
|
1450
|
80-200(I) |
50
|
12.5
|
4
|
1450
|
80-200(I)A |
44.7
|
10
|
3
|
1450
|
80-250(I) |
50
|
20
|
5.5
|
1450
|
80-250(I)A |
46
|
17
|
4
|
1450
|
80-250(I)B |
40.5
|
13
|
3
|
1450
|
80-315(I) |
50
|
32
|
11
|
1450
|
80-315(I)A |
46
|
27.9
|
7.5
|
1450
|
80-315(I)B |
40.5
|
21
|
5.5
|
1450
|
100-125 |
50
|
5
|
1.5
|
1450
|
100-160 |
50
|
8
|
2.2
|
1450
|
100-160A |
46
|
6
|
1.5
|
1450
|
100-200 |
50
|
12.5
|
4
|
1450
|
100-200A |
44.7
|
10
|
3
|
1450
|
100-250 |
50
|
20
|
5.5
|
1450
|
100-250A |
46
|
17
|
4
|
1450
|
100-250B |
40.5
|
13
|
3
|
1450
|
100-315 |
50
|
32
|
11
|
1450
|
100-315A |
46
|
27.9
|
7.5
|
1450
|
100-315B |
40.5
|
21
|
5.5
|
1450
|
100-125(I) |
80
|
5
|
2.2
|
1450
|
100-160(I) |
80
|
8
|
3
|
1450
|
100-160(I)A |
72
|
6.5
|
2.2
|
1450
|
100-200(I) |
80
|
12.5
|
5.5
|
1450
|
100-200(I)A |
72
|
10
|
4
|
1450
|
100-250(I) |
80
|
20
|
11
|
1450
|
100-250(I)A |
75
|
17.5
|
7.5
|
1450
|
100-250(I)B |
69
|
15
|
5.5
|
1450
|
100-315(I) |
80
|
32
|
15
|
1450
|
100-315(I)A |
75
|
27.5
|
11
|
1450
|
100-315(I)B |
70
|
24
|
11
|
1450
|
100-400(I) |
80
|
50
|
22
|
1450
|
100-400(I)A |
75
|
44
|
18.5
|
1450
|
100-400(I)B |
70
|
38
|
15
|
1450
|
125-125 |
100
|
5
|
2.2
|
1450
|
125-160 |
100
|
8
|
4
|
1450
|
125-160A |
87
|
6
|
4
|
1450
|
125-200 |
100
|
12.5
|
7.5
|
1450
|
125-200A |
89
|
10
|
5.5
|
1450
|
125-250 |
100
|
220
|
11
|
1450
|
125-250A |
93.5
|
17.5
|
7.5
|
1450
|
125-250B |
87
|
15
|
7.5
|
1450
|
125-315 |
100
|
32
|
15
|
1450
|
125-315A |
91
|
27
|
11
|
1450
|
125-315B |
87
|
24
|
11
|
1450
|
125-400 |
100
|
50
|
30
|
1450
|
125-400A |
94
|
44
|
22
|
1450
|
125-400B |
87
|
37.5
|
18.5
|
1450
|
125-200(I) |
160
|
12.5
|
11
|
1450
|
125-200(I)A |
143
|
10
|
7.5
|
1450
|
125-250(I) |
160
|
20
|
15
|
1450
|
125-250(I)A |
147
|
17
|
11
|
1450
|
125-250(I)B |
134
|
14
|
7.5
|
1450
|
125-315(I) |
160
|
32
|
22
|
1450
|
125-315(I)A |
150
|
28
|
18.5
|
1450
|
125-315(I)B |
138
|
24
|
15
|
1450
|
125-400(I) |
160
|
50
|
37
|
1450
|
125-400(I)A |
150
|
44
|
30
|
1450
|
125-400(I)B |
138
|
38
|
30
|
1450
|
150-200 |
160
|
12.5
|
11
|
1450
|
150-200A |
143
|
10
|
7.5
|
1450
|
150-250 |
160
|
20
|
15
|
1450
|
150-250A |
147
|
17
|
11
|
1450
|
150-250B |
134
|
14
|
7.5
|
1450
|
150-315 |
160
|
32
|
22
|
1450
|
150-315A |
150
|
28
|
18.5
|
1450
|
150-315B |
138
|
24
|
15
|
1450
|
150-400 |
160
|
50
|
37
|
1450
|
150-400A |
150
|
44
|
30
|
1450
|
150-400B |
138
|
38
|
30
|
1450
|
150-200(I) |
200
|
12.5
|
15
|
1450
|
150-200(I)A |
179
|
10
|
11
|
1450
|
150-250(I) |
200
|
20
|
18.5
|
1450
|
150-250(I)A |
187
|
17.5
|
15
|
1450
|
150-250(I)B |
173
|
14
|
11
|
1450
|
150-315(I) |
200
|
32
|
30
|
1450
|
150-315(I)A |
187
|
28
|
22
|
1450
|
150-315(I)B |
173
|
24
|
18.5
|
1450
|
150-400(I) |
200
|
50
|
45
|
1450
|
150-400(I)A |
187
|
44
|
37
|
1450
|
150-400(I)B |
173
|
37.5
|
30
|
1450
|
200-200 |
200
|
12.5
|
15
|
1450
|
200-200A |
179
|
10
|
11
|
1450
|
200-250 |
200
|
20
|
18.5
|
1450
|
200-250A |
187
|
17.5
|
15
|
1450
|
200-250B |
173
|
14
|
11
|
1450
|
200-315 |
200
|
32
|
30
|
1450
|
200-315A |
187
|
28
|
22
|
1450
|
200-315B |
173
|
24
|
18.5
|
1450
|
200-400 |
200
|
50
|
45
|
1450
|
200-400A |
187
|
44
|
37
|
1450
|
200-400B |
173
|
37.5
|
30
|
1450
|
200-200(I) |
400
|
12.5
|
22
|
1450
|
200-200(I)A |
358
|
10
|
18.5
|
1450
|
200-250(I) |
400
|
20
|
30
|
1450
|
200-250(I)A |
358
|
16
|
22
|
1450
|
200-250(I)B |
322
|
13
|
18.5
|
1450
|
200-315(I) |
400
|
32
|
55
|
1450
|
200-315(I)A |
374
|
28
|
45
|
1450
|
200-315(I)B |
346
|
24
|
37
|
1450
|
200-400(I) |
400
|
50
|
90
|
1450
|
200-400(I)A |
374
|
44
|
75
|
1450
|
200-400(I)B |
347
|
38
|
55
|
1450
|
200-400(I)C |
320
|
32
|
45
|
1450
|
250-250 |
550
|
20
|
45
|
1450
|
250-250A |
490
|
16
|
37
|
1450
|
250-315 |
550
|
32
|
75
|
1450
|
250-315A |
515
|
28
|
55
|
1450
|
250-315B |
476
|
24
|
45
|
1450
|
250-400 |
550
|
50
|
110
|
1450
|
250-400A |
515
|
44
|
90
|
1450
|
250-400B |
476
|
37.5
|
75
|
1450
|
300-400 |
720
|
50
|
132
|
1450
|
300-400A |
662
|
44
|
110
|
1450
|
300-400B |
609
|
38
|
90
|
1450
|
300-400C |
561
|
33
|
75
|
1450
|
300-460 |
720
|
65
|
200
|
1450
|
300-460A |
662
|
55
|
160
|
1450
|
300-460B |
609
|
45
|
110
|
1450
|
300-460C |
561
|
38
|
90
|
1450
|
300-510 |
720
|
80
|
250
|
1450
|
300-510A |
662
|
70.5
|
200
|
1450
|
300-510B |
609
|
62
|
160
|
1450
|
300-510C |
561
|
54.5
|
132
|
1450
|
300-235 |
720
|
18
|
55
|
970
|
300-235A |
657
|
15
|
45
|
970
|
300-300 |
720
|
28
|
75
|
970
|
300-300A |
666
|
24
|
75
|
970
|
300-300B |
623
|
21
|
55
|
970
|
300-380 |
720
|
44
|
132
|
970
|
300-380A |
666
|
38
|
110
|
970
|
300-380B |
623
|
33
|
90
|
970
|
350-250 |
800
|
20
|
75
|
970
|
350-250A |
715
|
16
|
55
|
970
|
350-315 |
800
|
32
|
90
|
970
|
350-315A |
748
|
28
|
75
|
970
|
350-315B |
692
|
24
|
75
|
970
|
350-400 |
800
|
50
|
160
|
970
|
350-400A |
750
|
44
|
132
|
970
|
350-400B |
697
|
38
|
110
|
970
|
400-400 |
1080
|
12.5
|
55
|
970
|
400-400A |
966
|
10
|
45
|
970
|
400-500 |
1080
|
20
|
90
|
970
|
400-500A |
966
|
17
|
75
|
970
|
400-500B |
935
|
15
|
55
|
970
|
400-625 |
1080
|
32
|
132
|
970
|
400-625A |
996
|
27
|
110
|
970
|
400-625B |
935
|
24
|
90
|
970
|
500-400 |
1200
|
12.5
|
75
|
970
|
500-400A |
1073
|
10
|
55
|
970
|
500-500 |
1200
|
20
|
110
|
970
|
500-500A |
1106
|
17
|
90
|
970
|
500-500B |
1040
|
15
|
75
|
970
|
500-625 |
1200
|
32
|
160
|
970
|
500-625A |
1106
|
27
|
132
|
970
|
500-625B |
1040
|
24
|
110
|
970
|
ISWD臥式管道離心泵(曲線圖譜)

訂貨請盡量提供:
1.型號2.口徑3.揚程(m)4.流量5.電機功率(KW)6.轉速(R/min)7.材質是否帶附件8.電壓(V)

感謝您訪問我們永嘉泉達的網站【www.jucheng888.com】如有任何水泵疑問.您可以致電給我們,電話:0577-66999097、66999098,我們將會盡力為您服務。
產品推薦:臥式熱水管道離心泵ISWR型 臥式管道離心泵ISWD型 熱水管道泵SGR型 ISG管道離心泵